Wohnung im Voralpenland
Umbau und Modernisierung einer denkmalgeschützten Wohnung
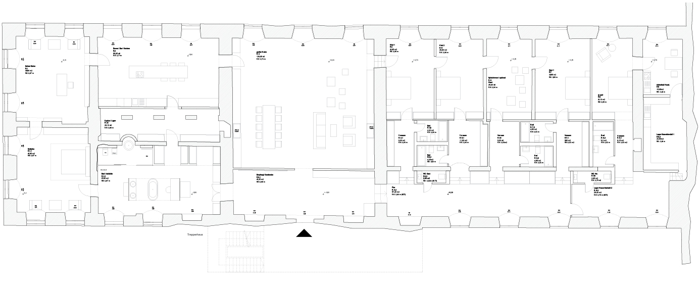
Die Räume einer historischen Anlage wurden über einen langen Zeitraum nicht mehr genutzt und sollen wieder der Wohnnutzung zugeführt werden.
Das geplante Sanierungs- und Modernisierungskonzept sieht vor, die neuen raumbildenden Einbauten und Möbel frei in die ehrwürdigen Räume einzustellen. Neue Bauteile und Raumtrennwände nehmen sich formal zurück und halten respektvoll Abstand zur historischen Substanz.
Die großzügige Wohnung wird in öffentliche und private Bereiche zoniert. Neue Raumaufteilungen ermöglichen mehrere Schlaf- und Kinderzimmer mit eigenen Bädern sowie einen eigenständigen Bereich für Gäste und Personal.
Projektdetails
Planungs- und Bauzeit:
2014-2015
Bauherr:
privat
Leistungen:
LPh 1–3: Udo Schemmel, in Kooperation mit Maier.Neuberger.Architekten München








